
        Sold
    
Listing Courtesy of: RIVER COUNTIES / Richardson Group Kw Cleveland  
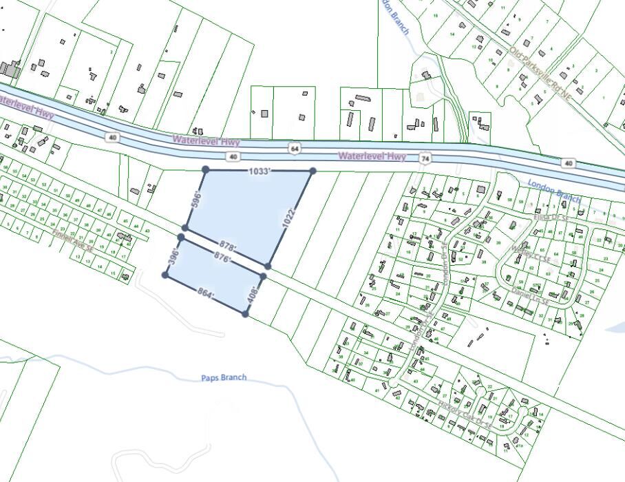
000 Waterlevel Highway Cleveland, TN 37323
      Sold on 08/19/2025  
  
$285,000            (USD)    
  25.04
          ACRES
      
      MLS #:
      
      
20251838
      20251838
        Taxes
        
        
$153
      $153
        Lot Size
        
        
25.04 acres
      25.04 acres
        Type
        
        
Land
      Land
        Views
        
        
Mountain(s)
      Mountain(s)
        County
        
        
Bradley County
    
  Bradley County
Listed By
Cindi Richardson, Richardson Group Kw Cleveland
  
    Bought with
Brian Workman, Bender Realty
Brian Workman, Bender Realty
  Source
RIVER COUNTIES
Last checked Nov 4 2025 at 12:00 AM GMT-0500
            RIVER COUNTIES
Last checked Nov 4 2025 at 12:00 AM GMT-0500
        Bathroom Details
        
        
      
        Pool Information
        
        
  - None
 
            Utility Information
            
            
    - Utilities: Water Available, Phone Available, Electricity Available
 - Sewer: None
 
            School Information
            
            
  - Elementary School: Park View
 - Middle School: Lake Forest
 - High School: Bradley County
 
Disclaimer: Copyright 2025 River Counties Association of Realtors. All rights reserved. This information is deemed reliable, but not guaranteed. The information being provided is for consumers’ personal, non-commercial use and may not be used for any purpose other than to identify prospective properties consumers may be interested in purchasing. Data last updated 11/3/25 16:00